DESETOGODIŠNJI ZAKUP
FOTO Država u zakup daje 29 poslovnih prostora: Pogledajte što se sve nudi i po kojoj cijeni
Iz Državnih nekretnina ističu da se poslovni prostori i garaže u zakup daju u viđenom stanju na vrijeme od 10 godina, a prvi mjesec od sklapanja ugovora o zakupu zakupnici su oslobođeni plaćanja zakupnine
Državne nekretnine raspisale su novi natječaj za zakup 29 poslovnih prostora u osam gradova, a najviše u Zagrebu, njih 16, objavila je u ponedjeljak ta tvrtka. Tri su prostora koja se nude duž Ilice, a prvi je na adresi Ilica 5 u Zagrebu te je površine 20-ak kvadrata i nalazi se u Oktogonu.
Državne nekretnine raspisale su novi natječaj za zakup 29 poslovnih prostora u osam gradova, a najviše u Zagrebu, njih 16, objavila je u ponedjeljak ta tvrtka. Tri su prostora koja se nude duž Ilice, a prvi je na adresi Ilica 5 u Zagrebu te je površine 20-ak kvadrata i nalazi se u Oktogonu.
Nekretnina pod oznakom PP9463 nalazi se u Zagrebu, na adresi Ilica 5. Prostor se nalazi u prizemlju ulične zgrade i ima površinu od 21,76 m².
Početna mjesečna neto zakupnina iznosi 524,30 EUR, a jamčevina 1.572,90 EUR. Predložena djelatnost obuhvaća sve djelatnosti dopuštene propisima, osim pružanja usluge smještaja.
Nekretnina se nalazi u Zagrebu, na adresi Gruška 6. Radi se o garaži broj 31, čija je površina 12,25 m².
Početna mjesečna neto zakupnina iznosi 31,85 EUR, a jamčevina 95,55 EUR.
Predložena djelatnost za ovu nekretninu je garaža.
Sljedeća nekretnina se nalazi u Zagrebu, na adresi Gundulićeva 18.
Radi se o prostoru u prizemlju s galerijom ulične zgrade, čija je površina 33,12 m².
Početna mjesečna neto zakupnina iznosi 559,2 EUR, dok je iznos jamčevine 1.677,69 EUR. Predložena djelatnost je svaka koja je dopuštena propisima, osim pružanja usluge smještaja.
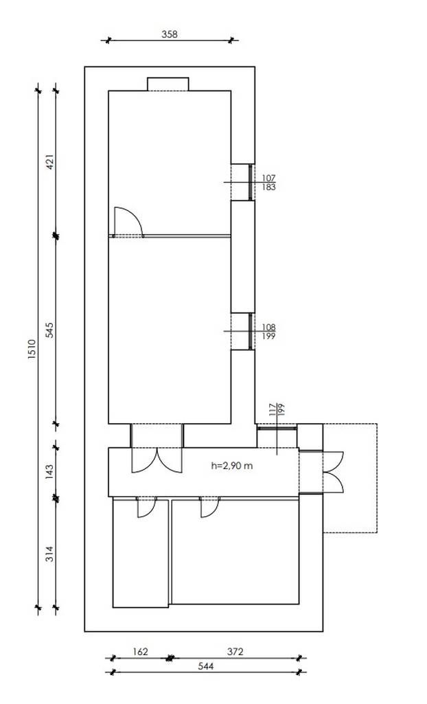
Nekretnina pod oznakom PP2856 nalazi se u Zagrebu, na adresi Ilica 35. Prostor se nalazi na prvom katu ulične zgrade i ima površinu od 57,79 m².
Početna mjesečna neto zakupnina iznosi 594,08 EUR, dok je iznos jamčevine 1.782,24 EUR.
Predložena djelatnost je svaka koja je dopuštena propisima, osim pružanja usluge smještaja.
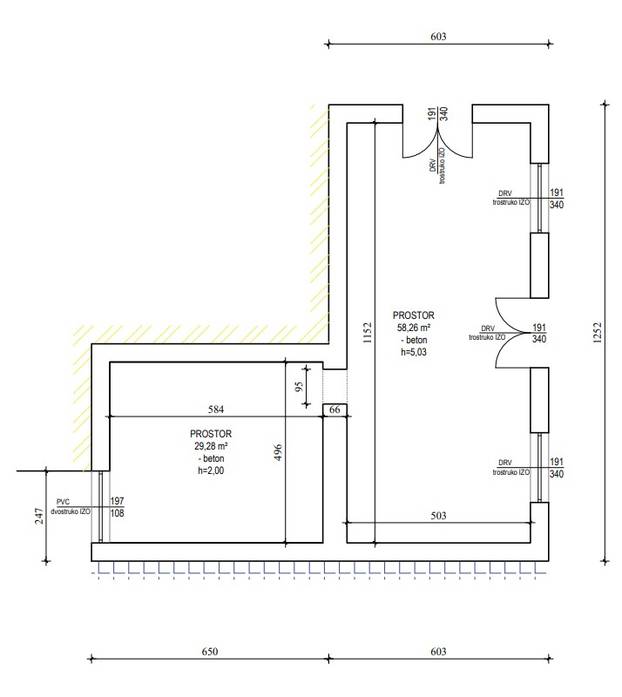
Nekretnina pod oznakom PP3468 nalazi se u Zagrebu, na adresi Ilica 73. Prostor se prostire na prizemlju i galeriji ulične zgrade te ima ukupnu površinu od 88,60 m².
Početna mjesečna neto zakupnina iznosi 1.416,97 EUR, dok je iznos jamčevine 4.250,91 EUR. Predložena djelatnost je svaka koja je dopuštena propisima, osim pružanja usluge smještaja.
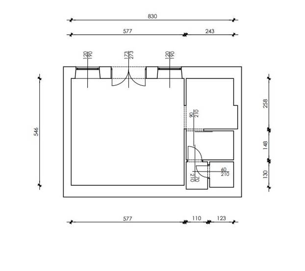
Nekretnina pod oznakom PP8618 POV nalazi se u Zagrebu, na adresi Ozaljska 49. Prostor se sastoji od prizemlja i podruma ulične zgrade, s ukupnom površinom od 60,00 m².
Početna mjesečna neto zakupnina iznosi 416,10 EUR, dok je iznos jamčevine 1.248,30 EUR.
Predložena djelatnost je svaka koja je dopuštena propisima, osim pružanja usluge smještaja.
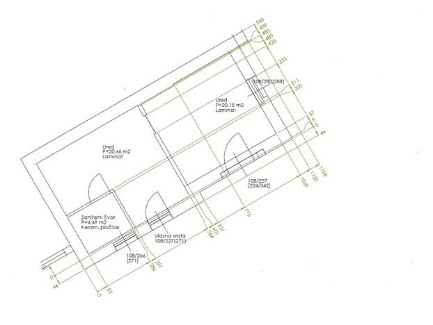
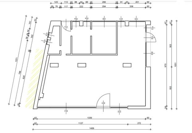
Nekretnina pod oznakom PP2665 nalazi se u Zagrebu, na adresi Ribnjak 2. Prostor je smješten u prizemlju ulične zgrade i ima ukupnu površinu od 114,91 m².
Početna mjesečna neto zakupnina iznosi 1.002,02 EUR, dok je iznos jamčevine 3.006,06 EUR.
Predložena djelatnost je svaka koja je dopuštena propisima, osim pružanja usluge smještaja.
Nekretnina pod oznakom PP10223 POV nalazi se u Zagrebu, na adresi Savska cesta 85. Prostor se nalazi u prizemlju ulične zgrade i ima površinu od 57,00 m².
Početna mjesečna neto zakupnina iznosi 478,80 EUR, dok je iznos jamčevine 1.436,40 EUR. Predložena djelatnost je svaka koja je dopuštena propisima, osim pružanja usluge smještaja.
Prostor se nalazi u prizemlju ulične zgrade i sastoji se od tri prostorije i sanitarnog čvora.
Od priključaka su dostupni električna energija, vodovod i kanalizacija.
Nekretnina pod oznakom PP1958 nalazi se u Zagrebu, na adresi Dragutina Rakovca 17. Prostor se nalazi u prizemlju ulične zgrade i ima površinu od 8,80 m².
Početna mjesečna neto zakupnina iznosi 95,92 EUR, dok je iznos jamčevine 287,76 EUR. Predložena djelatnost je svaka koja je dopuštena propisima, osim pružanja usluge smještaja.
Nekretnina pod oznakom PP3142 nalazi se u Zagrebu, na adresi Ivana Dežmana 2. Prostor se nalazi u prizemlju ulične zgrade i ima površinu od 18,87 m². Početna mjesečna neto zakupnina iznosi 332,11 EUR, dok je iznos jamčevine 996,33 EUR. Predložena djelatnost je svaka koja je dopuštena propisima, osim pružanja usluge smještaja.
Nekretnina pod oznakom PP1579 nalazi se u Zagrebu, na adresi Jurja Križanića 15.
Prostor se nalazi u prizemlju ulične zgrade i ima površinu od 90,31 m².
Početna mjesečna neto zakupnina iznosi 984,38 EUR, dok je iznos jamčevine 2.953,14 EUR.
Predložena djelatnost je svaka koja je dopuštena propisima, osim pružanja usluge smještaja.
Nekretnina pod oznakom PP7472 nalazi se u Zagrebu, na adresi Cernička 21.
Prostor se nalazi u prizemlju ulične zgrade i ima površinu od 24,84 m².
Početna mjesečna neto zakupnina iznosi 208,66 EUR, dok je iznos jamčevine 625,98 EUR.
Državne nekretnine u najam daju i nekretninu koja se nalazi u Zagrebu, na adresi Prolaz sestara Baković 1.
Radi se o prostoru u prizemlju i podrumu ulične zgrade, čija je površina 46,30 m².
Početna mjesečna neto zakupnina iznosi 536,80 EUR, a jamčevina 1.610,40 EUR.
Predložena djelatnost obuhvaća sve djelatnosti dopuštene propisima, osim pružanja usluge smještaja.
Nekretnina se nalazi u Zagrebu, na adresi Kneza Domagoja 10. Radi se o garaži broj 28, čija je površina 12,00 m².
Početna mjesečna neto zakupnina iznosi 37,20 EUR, a jamčevina 111,60 EUR.
Predložena djelatnost je garaža.
Nekretnina se nalazi u Zagrebu, na adresi Republike Austrije 29.
Sastoji se od prostora u prizemlju ulične zgrade površine 25,99 m² i spremišta u suterenu površine 8,84 m², ukupne površine 34,83 m².
Početna mjesečna neto zakupnina iznosi 303,72 EUR, a jamčevina 911,16 EUR.
Predložena djelatnost obuhvaća sve djelatnosti dopuštene propisima, osim pružanja usluge smještaja.
Nekretnina se nalazi u Zagrebu, na adresi Vinogradska cesta 5. Radi se o prostoru u prizemlju ulične zgrade, čija je površina 11,63 m².
Početna mjesečna neto zakupnina iznosi 97,69 EUR, a jamčevina 293,07 EUR.
Predložena djelatnost obuhvaća sve djelatnosti dopuštene propisima, osim pružanja usluge smještaja.
Nekretnina se nalazi u Cresu, u Stivanu. Radi se o prostoru u prizemlju ulične zgrade, čija je površina 79,48 m².
Početna mjesečna neto zakupnina iznosi 397,40 EUR, a jamčevina 1.192,20 EUR.
Predložena djelatnost obuhvaća sve djelatnosti dopuštene propisima, osim pružanja usluge smještaja.
Nekretnina se nalazi u Karlovcu, na adresi Ivana Banjavčića 7. Radi se o prostoru u prizemlju ulične zgrade, čija je površina 12,05 m².
Početna mjesečna neto zakupnina iznosi 35,97 EUR, a jamčevina 107,91 EUR.
Predložena djelatnost obuhvaća sve djelatnosti dopuštene propisima, osim pružanja usluge smještaja.
Nekretnina se nalazi u Karlovcu, na adresi Trg bana Petra Zrinskog 11. Radi se o prostoru u prizemlju ulične zgrade, čija je površina 29,00 m².
Početna mjesečna neto zakupnina iznosi 138,56 EUR, a jamčevina 415,68 EUR.
Predložena djelatnost obuhvaća sve djelatnosti dopuštene propisima, osim pružanja usluge smještaja.
Nekretnina se nalazi u Opatiji, na adresi Vrutki 6. Radi se o prostoru u prizemlju ulične zgrade, čija je površina 45,30 m².
Početna mjesečna neto zakupnina iznosi 405,76 EUR, a jamčevina 1.217,28 EUR.
Predložena djelatnost obuhvaća sve djelatnosti dopuštene propisima, osim pružanja usluge smještaja.
Nekretnina se nalazi u Osijeku, na adresi Vijenac Kraljeve Sutjeske 2, i smještena je u prizemlju ulične zgrade.
Ukupna površina prostora iznosi 81,37 m².
Početna mjesečna neto zakupnina je 316,04 EUR, dok je jamčevina 948,12 EUR.
Prostor je predviđen za sve djelatnosti koje su dopuštene propisima, osim pružanja usluge smještaja.
U Osijeku, na adresi Županijska 25, nudi se poslovni prostor smješten u prizemlju ulične zgrade, s površinom od 42,78 m².
Početna mjesečna neto zakupnina iznosi 301,50 EUR, a jamčevina 904,50 EUR.
Prostor je prikladan za sve djelatnosti dopuštene propisima, osim pružanja usluge smještaja, a energetski certifikat nosi oznaku C/A.
U Rijeci, na adresi Krešimirova 6A, dostupan je poslovni prostor u prizemlju ulične zgrade, s površinom od 46,00 m².
Početna mjesečna neto zakupnina iznosi 1.012,00 EUR, a jamčevina 3.036,00 EUR.
Prostor je predviđen za sve djelatnosti dopuštene propisima, osim pružanja usluge smještaja, a energetski certifikat ima oznaku B/B.
U Rijeci, na adresi Milana Smokvine Tvrdog 4A, nudi se poslovni prostor smješten u prizemlju ulične zgrade, s površinom od 40,00 m².
Početna mjesečna neto zakupnina iznosi 384,00 EUR, a jamčevina 1.152,00 EUR.
Prostor je namijenjen za sve djelatnosti dopuštene propisima, osim pružanja usluge smještaja. Energetski certifikat nosi oznaku B.
U Rijeci, na adresi Tizianova 36A, dostupan je poslovni prostor u prizemlju ulične zgrade, s površinom od 52,00 m².
Početna mjesečna neto zakupnina iznosi 499,20 EUR, a jamčevina 1.497,60 EUR.
Prostor je namijenjen za sve djelatnosti dopuštene propisima, osim pružanja usluge smještaja.
Energetski certifikat ima oznaku B/E.
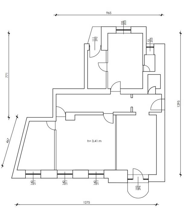
U Rijeci, na adresi Trpimirova 3B i 5, nudi se prostrani poslovni prostor u prizemlju ulične zgrade, s ukupnom površinom od 229,66 m².
Početna mjesečna neto zakupnina iznosi 5.144,38 EUR, a jamčevina 15.433,14 EUR.
Prostor je predviđen za sve djelatnosti dopuštene propisima, osim pružanja usluge smještaja.
Energetski certifikat ima oznaku B/E.
U Splitu, na adresi Obala Hrvatskog preporoda 10, dostupan je poslovni prostor na III. katu ulične zgrade, s površinom od 104,74 m².
Početna mjesečna neto zakupnina iznosi 5.237,00 EUR, a jamčevina 15.711,00 EUR.
Prostor je namijenjen za sve djelatnosti dopuštene propisima, osim pružanja usluge smještaja.
Energetski certifikat nosi oznaku C/C.
U Splitu, na adresi Sinjska 1, nudi se poslovni prostor smješten u prizemlju ulične zgrade, s površinom od 53,00 m².
Početna mjesečna neto zakupnina iznosi 2.650,00 EUR, a jamčevina 7.950,00 EUR.
Prostor je predviđen za djelatnosti u prizemlju ulične zgrade, a energetski certifikat ima oznaku C/D.
U Vukovaru, na adresi Vladimira Nazora 1, dostupan je poslovni prostor u prizemlju ulične zgrade, s površinom od 129,00 m².
Početna mjesečna neto zakupnina iznosi 685,25 EUR, a jamčevina 2.055,75 EUR.
Prostor je predviđen za sve djelatnosti dopuštene propisima, osim pružanja usluge smještaja.
Energetski certifikat ima oznaku C/A.